一、概述
ENR-RXQ/LXQ型6-35KV适用于电压互感器中性点的非线性电阻消谐阻尼器(消谐器),是安装在6-35KV电压互感器(压变或PT)一次绕组上,中性点与地之间的一种非线性电阻消谐阻尼器件。本产品是新的改型设计、电阻器外表裸露、无须绝缘外套保护、圆柱外形的消谐器。与之前只是外形不同,电气性能完全相同。
二、应用功能
6-35KV中性点非有效接地电网中的压变有二个相关问题需解决:
1、压变的铁磁谐振产生的过电压常使设备内绝缘击穿、外绝缘放电,且常因事故处理不及时或事故扩大而造成大面积停电;
2、电网中的弧光接地使电压互感器频频烧毁。使用消谐器可有效地解决上述问题:消除或阻尼压变非线性励磁特性而引起的铁磁谐振过电压,这种谐振过电压会导致系统相电不稳定;能有效抑制间隙性弧光接地时流过压变绕组的过电流,防止压变烧毁;限制系统单相接地消失时在压变一次绕组回路中产生的涌流,这种涌流会损坏压变或使压变熔丝熔断;当系统发生单相接地后可较长时间保护压变免受损坏。
三、ENR-RXQ/LXQ型6-35kV消谐器使用环境
1、户内外,装在压变的就近边上,消谐器虽有防雨功能,不宜直接经受日晒雨淋;
2、环境温度-40℃~+60℃;
3、交流电力系统频率为50Hz或60Hz;
4、地震烈度8度以下地区。
四、主要电气性能
ENR-RXQ/LXQ型6—35KV消谐器主要性能参数(表1)
|
型 号 |
直流特性KV/mA |
非线性系数a |
热容量250mA/10min |
||
|
ENR-RXQ/LXQ型6~10KV |
通用型 |
1.45~1.65/15 |
0.40~0.45 |
通过 |
|
|
弱绝缘型 |
1.38~1.45/15 |
0.40~0.45 |
通过 |
||
|
高原型 |
1.48~1.52/15 |
0.40~0.45 |
通过 |
||
|
超小型 |
1.45~1.65/15 |
0.40~0.45 |
通过 |
||
|
ENR-RXQ/LXQ型35KV |
通用型 |
A |
4.0~4.2/42 |
0.40~0.45 |
通过 |
|
B |
≥2.80~2.85/50 |
0.30~0.40 |
通过 |
||
|
弱绝缘型 |
2.60~2.70/50 |
0.35~0.45 |
通过 |
||
|
高原型 |
1.90~2.10/15 |
0.35~0.45 |
通过 |
||
表格中的参数为我厂典型产品参数,如用户有不同要求,我厂可根据用户要求生产.
五、ENR-RXQ/LXQ型6-35kV消谐器的安装
1、安装方式:
RXQ/LXQ型消谐器体积较小,可以采用垂直方式,也可以采用水平方式安装;可以直接固定在压变本体的螺杆上(注意JDZJ-6~10型压变的固定螺栓是不接地的。需将消谐器接地端与接地螺栓相连接)。也可以固定在压变附近支架上。
2、接线示意图:
2.1三个单相压变(PT)时:
未接消谐器前,三个单相压变高压绕组尾(X.Y.Z)直接接地或是并联成中性点(0)接地。接消谐器时,必须将直接接地的高压绕组尾或(0)与地断开。消谐器接在中性点(0)与地之间,(中性点不再直接接地)。
2.2三相五柱压变(PT)时:
未接消谐器前,三相五柱压变中性点“0”直接接地,接消谐器时必须将中性点(0)与地断开,消谐器接在中性点(0)与地之间(中性点不再直接接地)。
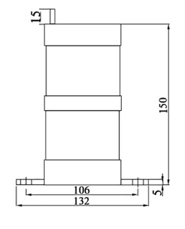
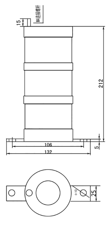
2.3消谐器的主要安装尺寸:


图1 ENR-RXQ/LXQ -6-10型外形图

图2 ENR-RXQ/LXQ-35KV外形安装图
六、如版本更改,恕不另行通知。
enrdq@163.com enrdq@126.com